
Lisätiedot ja kysymykset:
Niko Varis
Puhelinnumero: 0400 782 169
Sähköposti: niko.varis@accranes.fi
Voit jättää kyselyn myös täältä
Ylätuettu seinäkääntönosturi
Seinäkääntönosturit soveltuvat erinomaisesti taakkojen siirtelyyn työpistekohtaisesti.
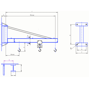
AC Cranes valmistaa ja asentaa kääntönosturit avaimet käteen -periaatteella. AC Cranes -seinäkääntönosturit ovat CE-merkittyjä. Rautarakenteet valmistamme itse ja nostimina kääntönostureissa käytämme ketjunostimia, taljoja, paineilmanostimia ja keventimiä. Kääntönosturit on mahdollista saada altatuetulla I-palkkipuomilla, vetoaisallisena, profiili- tai I-palkkipuomilla 2 – 8 m pituisina. Vakiokapasiteetit 125 – 1 500 kg.
Seinäkääntönosturi soveltuu seinän vieressä olevan työpisteen nostolaitteeksi. Seinäkääntönosturin kääntökulma on max 270° astetta käsikäännöllä ja se voidaan asentaa halutulle korkeudelle.
Tästä voit jättää helposti kyselyn tästä tuotteesta:
Kuvaus






