
Lisätiedot ja kysymykset:
Niko Varis
Puhelinnumero: 0400 782 169
Sähköposti: niko.varis@accranes.fi
Voit jättää kyselyn myös täältä
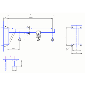
Alatuettu seinäkääntönosturi
Seinäkääntönosturit soveltuvat erinomaisesti taakkojen siirtelyyn työpistekohtaisesti.
AC Cranes valmistaa ja asentaa kääntönosturit avaimet käteen -periaatteella. AC Cranes -seinäkääntönosturit ovat CE-merkittyjä. Rautarakenteet valmistamme itse ja nostimina kääntönostureissa käytämme ketjunostimia, taljoja, paineilmanostimia ja keventimiä. Kääntönosturit on mahdollista saada altatuetulla I-palkkipuomilla, vetoaisallisena, profiili- tai I-palkkipuomilla 2 – 7 m pituisina. Vakiokapasiteetit 125 – 2 000 kg.
Seinäkääntönosturi soveltuu seinän vieressä olevan työpisteen nostolaitteeksi. Seinäkääntönosturin kääntökulma on max 270° astetta käsikäännölläja se voidaan asentaa halutulle korkeudelle.
Tästä voit jättää helposti kyselyn tästä tuotteesta:
Kuvaus

| Ulottuma | Kuorma | Vetovoima | |||||||
| R | Q | k | r | d | b | a | f | Rmin. | Pultti |
| m | kg | mm | mm | mm | mm | mm | mm | mm | kN |
| 3 | 125 | 170 | 3110 | 250 | 270 | 840 | 370 | 530 | 6,5 |
| 250 | 170 | 3110 | 250 | 270 | 840 | 370 | 530 | 9,8 | |
| 500 | 190 | 3110 | 250 | 340 | 1280 | 440 | 630 | 10,5 | |
| 1000 | 190 | 3160 | 250 | 340 | 1280 | 440 | 660 | 19,7 | |
| 1500 | 190 | 3170 | 250 | 340 | 1280 | 440 | 670 | 27,9 | |
| 2000 | 225 | 3190 | 250 | 340 | 1480 | 440 | 790 | 31,4 | |
| 4 | 125 | 170 | 4130 | 250 | 276 | 840 | 370 | 630 | 8,9 |
| 250 | 170 | 4130 | 250 | 270 | 840 | 370 | 730 | 13,5 | |
| 500 | 190 | 4130 | 250 | 340 | 1280 | 440 | 730 | 14,1 | |
| 1000 | 220 | 4160 | 250 | 340 | 1280 | 440 | 760 | 26,7 | |
| 1500 | 225 | 4170 | 250 | 340 | 1480 | 440 | 870 | 32,6 | |
| 2000 | 225 | 4190 | 250 | 340 | 1480 | 440 | 890 | 41,9 | |
| 5 | 125 | 190 | 5130 | 250 | 340 | 1080 | 440 | 730 | 9 |
| 250 | 190 | 5130 | 250 | 340 | 1280 | 440 | 730 | 11,1 | |
| 500 | 220 | 5130 | 250 | 340 | 1280 | 440 | 830 | 18,4 | |
| 1000 | 220 | 5160 | 250 | 340 | 1280 | 440 | 860 | 34,1 | |
| 1500 | 225 | 5170 | 250 | 340 | 1480 | 440 | 970 | 41,2 | |
| 6 | 125 | 190 | 6130 | 250 | 340 | 1280 | 440 | 830 | 9,7 |
| 250 | 190 | 6130 | 250 | 340 | 1280 | 440 | 830 | 13,9 | |
| 500 | 220 | 6130 | 250 | 340 | 1280 | 440 | 930 | 22,9 | |
| 1000 | 225 | 6160 | 250 | 340 | 1480 | 440 | 960 | 36,1 | |
| 7 | 125 | 190 | 7130 | 250 | 340 | 1280 | 440 | 930 | 12,1 |
| 250 | 220 | 7130 | 250 | 340 | 1280 | 440 | 930 | 17,4 | |
| 500 | 225 | 7130 | 250 | 340 | 1480 | 440 | 1030 | 24,1 | |
| 8 | 125 | 220 | 8130 | 250 | 340 | 1280 | 440 | 1030 | 15,2 |
| 250 | 220 | 8130 | 250 | 340 | 1280 | 440 | 1030 | 21,3 | |
| 500 | 225 | 8130 | 250 | 340 | 1480 | 440 | 1130 | 29,3 | |






