
Lisätiedot ja kysymykset:
Niko Varis
Puhelinnumero: 0400 782 169
Sähköposti: niko.varis@accranes.fi
Voit jättää kyselyn myös täältä
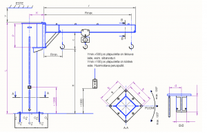
Alatuettu pylväskääntönosturi
Pylväskääntönosturit soveltuvat erinomaisesti taakkojen siirtelyyn työpistekohtaisesti. AC Cranes valmistaa ja asentaa kääntönosturit avaimet käteen perjaatteella. AC Cranes pylväskääntönosturit ovat CE-merkittyjä. Rautarakenteet valmistamme itse ja nostimina kääntönostureissa käytämme ketjunostimia, taljoja, paineilmanostimia ja keventimiä. Kääntönosturit on mahdollista saada alta-tuetulla I-palkki puomilla tai vetoaisallisena profiili tai I-palkki puomilla 2 – 7 m pituisina. Vakio kapasiteetit 125 – 2 000 kg.
Altatuettu ylväskääntönosturi soveltuu paikkoihin, joissa ei ole mahdollisuutta kiinnittää seinäkääntönosturia ja tarvitaan mahdollissimman paljon nostokorkeutta. Asennus tapahtuu liimalla tai kiila-ankkureilla lattiaan tai valettavalla peruspulttikehikolla. Kääntökulma pylväskääntönosturilla on vakiona 270 tai 360 astetta kone- tai käsikäännöllä.
Lisäksi valmistamme teleskooppi- ja nivelkääntönostureita
Tästä voit jättää helposti kyselyn tästä tuotteesta:
Kuvaus

|
Ulottuma |
Kuorma | Mitat | Puomin | Pylvään | ||||||
| R | Q | k | r | p | a1 | p | B | Ø | massa | massa |
| m | kg | mm | mm | mm | mm | mm | mm | mm/kpl | kg | kg |
| 3 | 125 | 235 | 3130 | 331 | 530 | 450 | 520 | 27/4 | 254 | 102 |
| 250 | 265 | 3130 | 331 | 530 | 450 | 520 | 30/4 | 309 | 117 | |
| 500 | 305 | 3130 | 350 | 630 | 580 | 700 | 30/4 | 530 | 137 | |
| 1000 | 350 | 3160 | 383 | 660 | 580 | 700 | 30/4 | 842 | 155 | |
| 1500 | 395 | 3170 | 440 | 670 | 580 | 700 | 30/8 | 955 | 175 | |
| 2000 | 410 | 3190 | 507 | 790 | 580 | 700 | 33/8 | 960 | 237 | |
| 4 | 125 | 265 | 4130 | 311 | 630 | 450 | 520 | 27/4 | 309 | 125 |
| 250 | 265 | 4130 | 350 | 730 | 450 | 520 | 30/4 | 456 | 160 | |
| 500 | 320 | 4130 | 380 | 730 | 580 | 700 | 30/4 | 645 | 190 | |
| 1000 | 365 | 4160 | 367 | 760 | 580 | 700 | 30/4 | 874 | 250 | |
| 1500 | 415 | 4170 | 537 | 870 | 580 | 700 | 33/8 | 960 | 331 | |
| 2000 | 425 | 4190 | 595 | 890 | 580 | 700 | 40/8 | 965 | 383 | |
| 5 | 125 | 265 | 5130 | 350 | 730 | 450 | 520 | 27/4 | 378 | 197 |
| 250 | 305 | 5130 | 380 | 730 | 580 | 700 | 30/4 | 530 | 233 | |
| 500 | 320 | 5130 | 439 | 830 | 580 | 700 | 30/4 | 645 | 300 | |
| 1000 | 415 | 5160 | 537 | 830 | 580 | 700 | 33/8 | 955 | 397 | |
| 1500 | 425 | 5170 | 595 | 970 | 580 | 700 | 40/8 | 965 | 463 | |








